一次性解决老房装修难题,全包圆PLUS级福利来了
扫描到手机,新闻随时看
扫一扫,用手机看文章
更加方便分享给朋友
老房装修需要面对的问题一般都不会少。就现阶段而言,我国的“老房”大部分是指砖混结构的中低层住宅,无论是结构还是质量,都难言出色。所以老房翻新一般有两个方面的需求:一是与老房相守日久,但由于地段良好不想更换新房,故改善下居住环境;二是购入特殊住房(如学区房),需要进行翻改以便家人在一段时间内舒适居住。
问题是,老房装修的一大“痛点”还在于,如果对房子大肆改造,花费较高,难免又会感觉不值;可简单装一装随便住一住,则又在心理上有所排斥,结果住也住不好。所以面对这种问题究竟该怎么办呢?说白了,核心点就在于:如何在成本优化的基础上,装出让自己满意的房子。
其实随着全包家装的发展,如今家装都可以用超高性价比的价格,来实现一套理想居所的装修。不信的话,我们可以来看看。

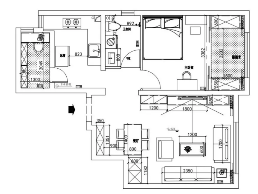
这是一个典型的小两居结构老房,面积为80㎡,全算上最后花了10来万,至于装修出的实际效果是怎样的呢?请看下图:


风格古朴、简约又具备现代元素,对于客厅的排名前列感觉是否就已经相当“吸睛”了呢?该设计是北京全包圆装修设计师以新中式风格下的“闲庭落英”样板间为蓝本进行的再发挥。众所周知,新中式吸收了传统中式的国风魅力,同时又将人文深度与现代艺术融为一体,不仅适合中老年人,对年轻群体也同样非常友好。
我们可以看到,该设计中,客厅采用了质感温馨舒适的实木布艺沙发,再搭配沉稳精致的暗色茶几,家具则采用轻中式风,有格调也有禅意,使整个空间简洁、大方又舒缓自然,韵味让人回味无穷。

尽管受限于空间的制约,但设计师还是以足够的想象力对客厅与餐厅进行了层次切割,格栅屏风的运用,恰到好处地在一个区域内划分了功能空间,同时屏风还优质将体积较大的冰箱隐藏了起来。同时,侧面墙柜收纳与展示融为一体,功能性和美观性同步输出,配合暗色餐桌,形成了“稳重静谧”的视觉效应,带来一种轻松舒适的用餐环境。


该设计中,卧室算是相当有特色的。该房屋是一位业主为父母所打造,考虑到老年人夜间睡眠较浅,为不打扰彼此有分床睡习惯,但整居卧室仅此一间。故设计师将卧室一分为三,飘窗一侧以榻榻米+抽拉门的形式做成了一个独立空间,打造出左右双卧,中间为梳妆台&阅读区的格局,可谓别具匠心。

厨房的风格与整体居室相契合,同时更注重实用性,浅色墙砖既让空间不显得沉闷,又带来整洁干净的空间印记,金色线条的点缀又让厨房在古典中透露出跃动的现代气息。

卫生间诠释了功能主义的特性,做到了干湿分离,器物均以简洁合用为主,方便父母使用。

从上图可以看到,全包圆承诺所见即所得,但也会依据业主的需求、喜好和房屋的具体格局进行再设计,直到业主满意为止。
而且对于老房装修来说,除了少花钱把家装好,同时也更需要省心省力省事的装修服务和售后服务。而业之峰旗下的子品牌全包圆,能实现工程+水电+辅材+主材+灯饰+家具+电器“一站式”全包,并承诺全程无增项和基础工程质保十年,这不正优质契合了老房翻新的需求吗?所以不用找什么装修攻略,较佳选择就是:北京全包装修,就找全包圆。
声明:本文由入驻焦点开放平台的作者撰写,除焦点官方账号外,观点仅代表作者本人,不代表焦点立场。


