轨交站点近在咫尺 190余万完善配套名企洋房值不值得买?
扫描到手机,新闻随时看
扫一扫,用手机看文章
更加方便分享给朋友
在天津楼市之中,东丽一直都不是热度拔尖的区域,但随着其他区域环线周边土地的开发和建设日趋饱和,东丽区较为充盈的土地储备就得到了凸显。无论是鸭梨变土豆从环外变成环内的金钟街,还是早已拥有新业广场、宜家家居大型商业配套的东丽开发区/新立板块,都由于邻近市区以及享有便捷的轨道交通而备受关注。本期带大家走访的是轻轨9号线新立站紧邻的融信·金地澜悦。
一、区位交通
澜悦位于东丽区津塘公路与富安路交口西南侧,新立轻轨站旁,出小区东门后距离轻轨站A口大约只有120米,实实在在的地铁房。轻轨9号线可与地铁2、3、5号线换乘,便捷前往多个市内和环城区域。
除轻轨之外,项目南侧还有地铁11号线正在建设中,外环辅道站距离小区直线距离约650米,待建成后,从这里可以更为便捷的前往小海地、文化中心、八里台等地。
项目周边公交线路有305路、690路、185路、716路、806路、830路等,自驾车则有津塘公路、先锋路和外环东路等主干道路,出行便捷。
推荐指数:★★★★★
小结:澜悦紧邻轻轨9号线站点,周边公交线路丰富,未来地铁11号线建成通车后,采用公交出行将更加便捷。由于紧邻外环东路和津塘公路,自驾车出行同样很方便。
二、楼盘概况
澜悦由融信和金地联合开发,两个地块总占地面积6.1万平米,建筑面积10.5万平米,容积率2,绿化率45%,共27栋楼806户,以6-7层到顶洋房为主,少量10层到顶的小高层。小区两个地块出入口均位于各自的东西两侧,车位配比1:1.3,纯地下车位,保证了社区路面上老人和儿童的安全。
项目一期洋房和小高层在售,主推91、105、128平米三室户型,小高层均价23000元/平米,洋房均价24000元/平米,91平米户型出房率79%,总价约190余万,105平米户型出房率82%,总价约230万,128平米户型出房率82%,总价约300万出头,均为毛坯房。项目采用融信世欧物业物业,物业费3.65元/平米*月,预计2022年6月底交房。
除住宅之外,项目还有4.8米挑高的开间正在排卡,户型包括33、58、63平米,均价14000-15000元/平米左右,有意向的朋友可致电售楼处咨询。
推荐指数:★★★★
小结:澜悦住宅部分户型均为三居室,最小户型为91平米三室,平均总房款在190余万,部分顶层房源总价在180余万元,无论从户型面积还是总房款来看,都更偏向于改善型购房者。
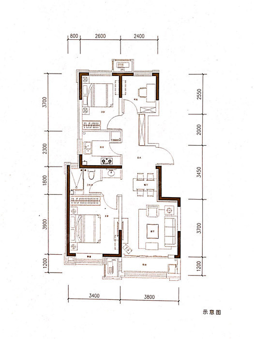
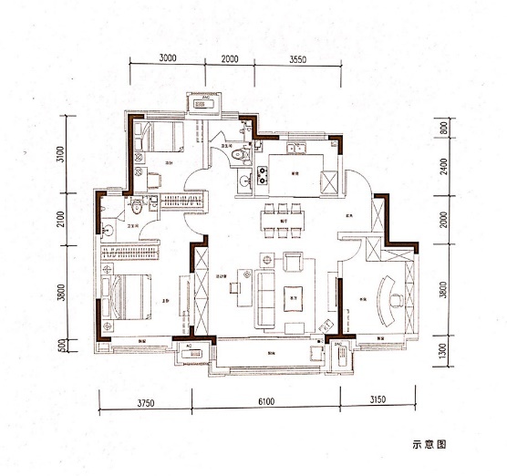
三、户型和样板间
澜悦共有91、105、128三个户型,阳台都带有上下水,洗衣晾衣一气呵成,符合北方家庭的日常生活习惯。
面积最小的91平米三室两厅一卫,出房率约为79%,南向客厅开间达到了3.8米,连通了同等面宽的阳台,南向主卧面宽达到3.4米,采光条件好,卫生间干湿分离,保证室内干燥整洁无异味,北向次卧面积近10平米,即便摆放双人房也不会感觉拥挤,6平米左右的书房同样比较宽敞。
105平米的三室两厅两卫,出房率约为82%,南向三开间,客厅带阳台,主卧和书房带飘窗。主卧带有独立卫浴,提升了起居私密性。
128平米的三室两厅两卫,出房率约为82%,布局与105平米户型近似,但每个空间都做了放大,更加宽敞。南向大客厅达到了6.1米面宽,主卧面宽3.75米,书房3.15米,光照条件优越,客卫也做成了干湿分离设计,利用率更高。
推荐指数:★★★★★
小结:澜悦三个户型均为客厅连通阳台,阳台带有上下水的设计,符合北方人在室内晾晒衣物的习惯,南向卧室都带有飘窗,无论是采光条件还是作为一个休闲空间都非常实用。
四、周边配套
澜悦位于东丽开发区/新立板块,周边基础配套完善,大型商业有红星美凯龙、宜家、新业广场、汇城广场,南侧约1公里左右为建设中的万达广场(目前已经封顶)。除此之外,项目自身配建商业,会有生鲜果蔬等小型配套,业主日常买菜更加方便。
项目西北侧约700米为东丽医院,驱车20分钟左右可抵达武警医院、第三中心医院,15分钟左右可抵达胸科医院和环湖医院。
澜悦东侧的富安路上500米左右范围内分布着从幼儿园到中学的教育配套:丰年幼儿园、丽泽小学、鉴开中学,东南侧1.5公里为重点高中——天津市排名前列百中学。
项目南侧的先锋东路上有东丽区体育运动中心、人民法院、社保中心等机构,在大多数环城板块中属于配套较为成熟的。
推荐指数:★★★★
小结:澜悦作为环城成熟居住板块的楼盘,多数配套都是现有的,万达广场和地铁11号线也都在建设当中,不用担心新房可能会面临的“兑现难“问题。
写在最后
澜悦位于东丽开发区/新立板块,紧邻外环线,轻轨站近在咫尺,享有较为完善的交通、商业、医疗、教育配套。周边万达广场和地铁11号线均在建设中,未来配套将更加完善。金地和融信强强联合,满足了改善群体对楼盘品质的追求。项目主打三居室房源,整体户型设计合理,南北通透,阳台带有上下水,符合北方家庭的日常生活习惯,91平米户型较低总价约190余万,对于资金有限的刚改客户也有一定吸引力。
声明:本文由入驻焦点开放平台的作者撰写,除焦点官方账号外,观点仅代表作者本人,不代表焦点立场。


